|

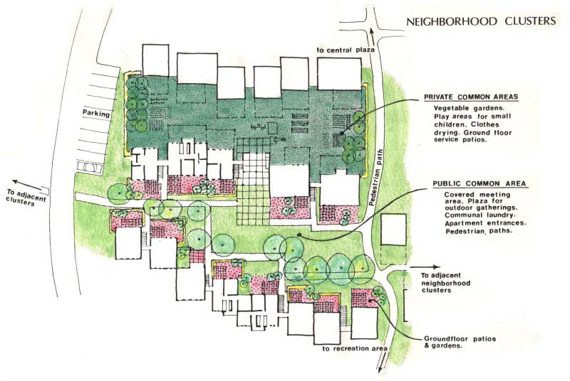
42.邻居群

43.展示公共区域的邻居群

44.邻居群的模型
|
利用这些水平和垂直位移的取向选择,我们可以创建一个社区群。在楼房的前面修建一个公共活动区域,其人行道通向公寓的入口,同时修建一个邻里广场和有带顶棚的会议区。底楼的天井和花园可形成一个这些公共空间相接的绿色地带。在楼房的后面是住户的私人空间区域。这一区域包含有社区和个人花园园地,还有靠近公共洗衣设施并受到保护的儿童玩耍的地带以及衣物晾晒区。公共洗衣间是带顶棚集会空间的一部分。人行道通向中心广场、购物商店、学校和电影院等地,平均步行距离约200米。这些人行道向南可到大坝和娱乐区。在附近的慢车道可停车(平均30米,最远80米内),有专设的社区内部车辆入口
|